BDX Floorplan 1
BDX Floorplan 1
Family
Kitchen
Breakfast
Dining
Entry
Master
MasterBath
Sunroom
1/8Kitchen
Cambridge F - RenderEmme Kate LaneMadison, Al 35756

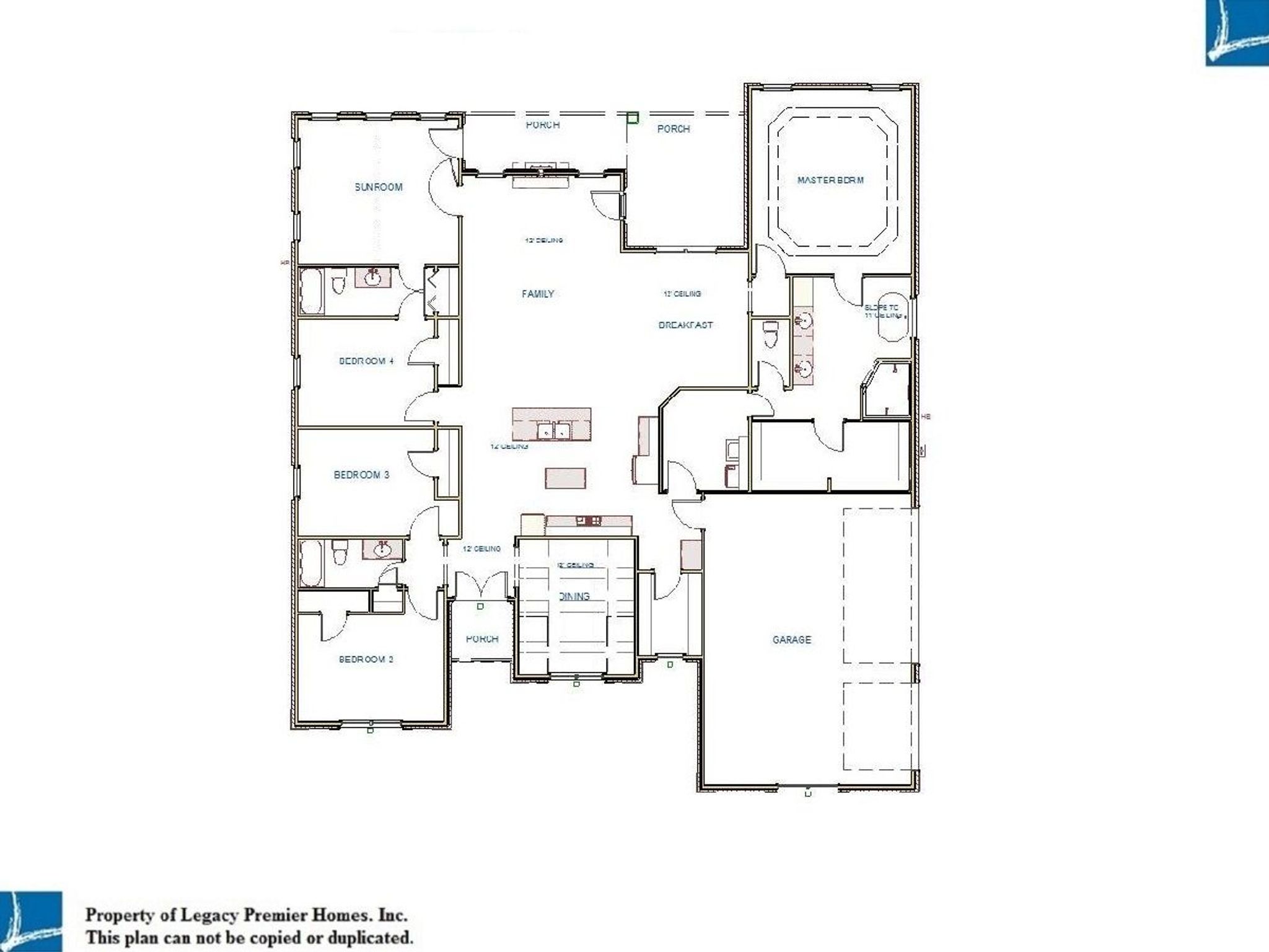
All brick Cambridge Plan D is an open plan with a 3 car side entry garage backed by a 2-10 home warranty. Home has 4 bedrooms, 3 baths and a sunroom. Home has wood plus flooring (Mohawk Revwood, Engineered Hardwood, or similar product) in all living areas and bedrooms. Great Room features 12' ceiling, 8' tall doorways, extensive trim, gas-log fireplace with upgraded fireplace treatment, floor outlet, recessed lights and ceiling fan. Dining room has 12’ coffered ceiling, 8' tall doorway, extensive trim including shadow box under chair rail. Open Kitchen includes 12’ ceiling, soft close custom cabinetry and granite countertops, large island with countertop seating, second prep island, stainless appliances (Gas Cooktop, Cabinet Vent Hood, Wall Oven, Wall Microwave, Dishwasher), tile backsplash, recessed and under cabinet lighting, huge walk-in pantry, and drop zone bench. Breakfast has 12’ ceiling and extensive trim. Master bedroom has 11’ double tray ceiling, recessed lighting, extensive trim and ceiling fan. Master bath has 11’ ceilings, freestanding tub, large corner tile shower with two shower heads and rimless door, separate toilet area, large double vanity with granite, huge walk-in closet and access to laundry. Large sunroom has vaulted ceiling and ceiling fan. The additional bedrooms have 9' ceilings, ceiling fans, and crown molding. The additional baths have 9' ceilings, tile flooring and granite counter tops. Laundry has 9' ceilings, custom cabinet and tile flooring. Large rear covered porch with ceiling fan. The home has a tankless water heater. Home includes fully sodded yard, gutters (piped under sidewalks) and attractive landscaping. Builder has a closing cost program. Legacy Grove Subdivision has pool, clubhouse, tennis courts, access to lakes, underground utilities, curb and gutter, street lights, sidewalks, public sewer and a professionally managed HOA.

Pricen/a
Floor size3155
Beds4
Baths3
Year Builtn/a