Keystone Circle 8530 Keystone CirChattanooga, TN 37421

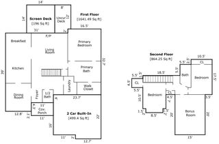
Don't miss this incredible opportunity to own a premier luxury home in the prestigious Keystone Community! Located at 8530 Keystone Circle, Chattanooga, TN, this stunning 3-4 Bedroom, 2.5 Bathroom, brick home is now available for UNDER $500k. Situated on a manicured lot with no HOA, this home offers ultimate convenience, just minutes from Gunbarrel Rd, I-75, and all the amenities on East Brainerd Rd. As you approach, you'll be greeted by an immaculate lawn, a spacious driveway, and a 2-car garage. Step onto the front covered porch and enter into a welcoming foyer. Gleaming hardwood floors flow seamlessly throughout the main level, including the staircase. The well crafted floor plan features a formal dining room, a chef's kitchen with stainless steel appliances, tile backsplash, ample cabinetry (including a built-in pantry), and sleek granite countertops. The grand living room boasts soaring cathedral ceilings and a cozy fireplace. The spacious primary suite is conveniently located on the main level and includes luxurious touches such as high trey ceilings, a spa-like ensuite bath with a soaking tub, separate shower, dual vanities, water closet, and a walk-in closet. Upstairs, you'll find brand new carpet throughout the hallway and two additional bedrooms. A bonus room awaits—perfect for a 4th bedroom, home office, gym, or entertainment space. A full bathroom completes this level, featuring a tub/shower combo. Step outside to the covered, screened-in porch and open wood deck, ideal for enjoying Chattanooga's beautiful weather. Other highlights include a whole-house vacuum system, a newer roof installed in 2023, and an unbeatable location close to dining, shopping, entertainment, and medical facilities. View Additional Details Here: https://8530keystonecircle.crye-leike.com/

Price$485,000
Floor size2,529
Beds4
Baths2.5
Year Built2006