1
1
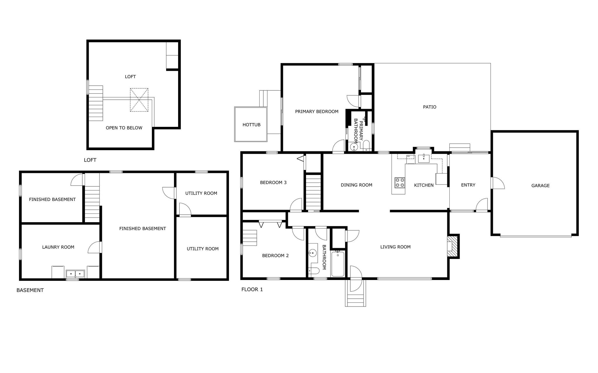
Finished Basement
Finished Basement
Laundry Room
Utility Room
Utility Room
2
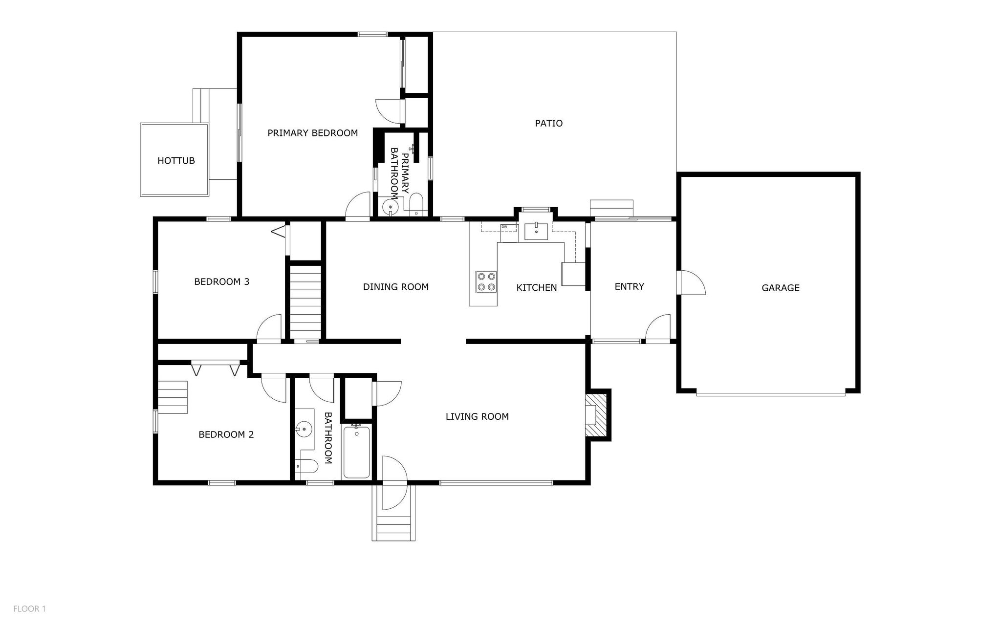
Entry
Kitchen
Living Room
Dining Room
Primary Bedroom
Primary Bathroom
Bedroom 3
Bedroom 2
Bathroom
Bedroom 2 Loft
3
Bedroom 2 Loft
Bedroom 2
4
Entry
Living Room
Primary Bedroom
Primary Bathroom
Kitchen
Dining Room
Bedroom 3
Bathroom
Utility Room
Utility Room
Finished Basement
Finished Basement
Laundry Room
Bedroom 2 Loft
Bedroom 2
1/19Front
211 High Ridge Road Manchester NH 03104211 High Ridge RoadManchester, NH 03104

One Level Living with bonus space!!! 1788 square feet finished on the main level and an additional 780 in Lower Level! There is so much to enjoy in this home, a kitchen designed for hosting great dinner parties, a back yard with mature gardens, patio area for outdoor dining, an inground pool & hot tub. 3 Bedrooms & 2 full baths on main level, the primary suite has a slider door directly to the hot tub outside! Lower level offers a huge family room plus a bonus space. Central air, on demand generator, hardwood floors, garage, everything you would want!

Price649900
Floor size1788
Beds3
Baths2
Year Built1950