BDX Floorplan 1
BDX Floorplan 1
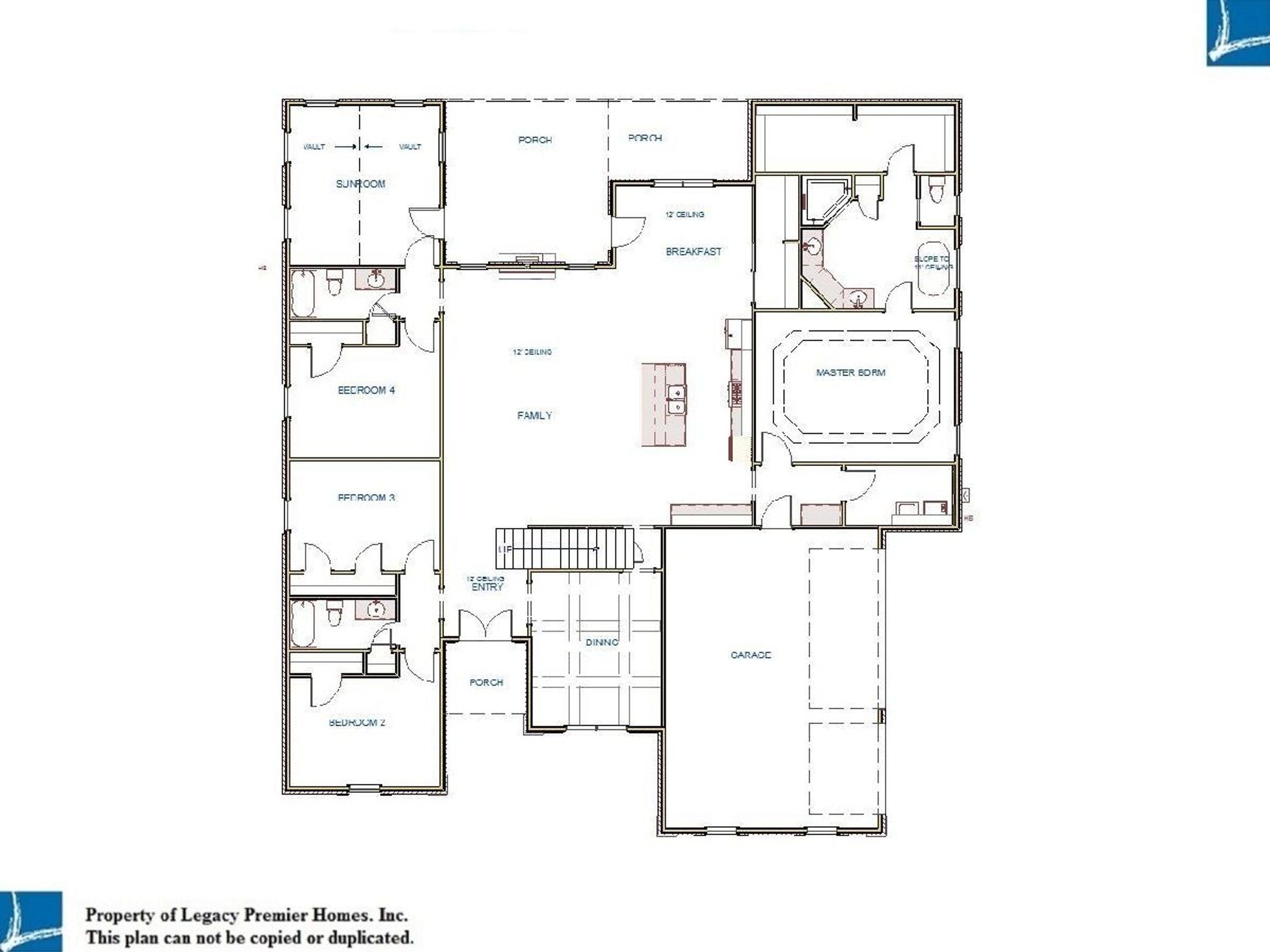
Family
Kitchen
Breakfast
Entry
Dining
Sunroom
Masterbath
Master
BDX Floorplan 2
Bonus
1/9Family
Thorton - RendererEmme Kate LaneMadison, Al 35756

All brick Thorton B is an open plan with a 3 car side entry garage backed by a 2-10 home warranty. Home has 5 bedrooms, 4 baths, sunroom and bonus room. Home has wood plus flooring (Mohawk Revwood, Engineered Wood or Similar Product) in all living areas and bedrooms. Great Room features 12' ceiling, 8' tall doorways, extensive trim, gas-log fireplace with upgraded fireplace treatment, recessed lights and ceiling fan. Dining room has 9' coffered ceiling, extensive trim including shadow box under chair rail. Open Kitchen includes 12’ ceiling, 8' tall doorways, soft close custom cabinetry and granite counter tops, large island with extra storage and countertop seating, stainless appliances (Gas Cooktop, Cabinet Vent Hood, Wall Oven, Wall Microwave, Dishwasher), tile backsplash, recessed and under cabinet lighting, huge walk-in pantry and drop zone bench. Breakfast has 12’ ceiling and extensive trim. Laundry has custom cabinet, tile flooring. Master bedroom has a 11' double tray ceiling, recessed lighting, extensive trim, ceiling fan. Master bath has 11’ ceilings, freestanding tub, large corner tile shower with tile bottom, two shower heads and rimless shower door, separate toilet area, large double vanity with granite and huge walk-in closet. Large sunroom has vaulted ceiling and ceiling fan. The home has hardwood stairs leading to the second story. The additional bedrooms and bonus room have ceiling fans and crown molding. The additional baths have tile flooring and granite countertops. Home has large rear covered porch perfect for entertaining. Home includes fully sodded yard, gutters including piping under sidewalks and attractive landscaping. Builder has a closing cost program. Legacy Grove Subdivision has pool, clubhouse, tennis courts, access to lakes, underground utilities, curb and gutter, street lights, sidewalks, public sewer and a professionally managed HOA.

Pricen/a
Floor size4190
Beds5
Baths4
Year Builtn/a